FREMOFreundeskreis Europäischer Modellbahner eV. |
10.02.2005 |
| [FREMO Inhaltsverzeichnis] [NMRA-DCC beim FREMO] [Fred] [Lokodex-Digitalseiten] |
Auf dieser Seite wird der Bau des Wattenscheider Signalschachts sowie der Einbau in das Modul beschrieben. Idee und Entwurf des Schachtes stammen von Martin Balser und Jochen Leisner. Bildbeispiele eingebauter Schächte gibt es unter http://www.boerde.de/~horstf/bahn/pfeiftafel/signalschacht/.
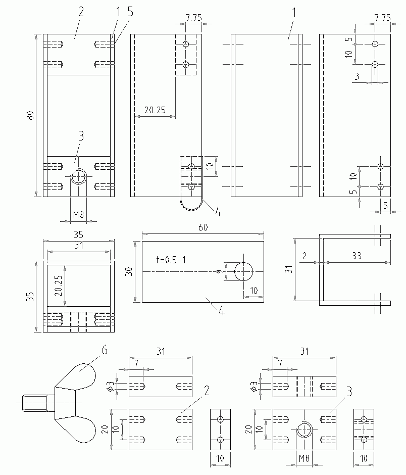
Pro Schacht werden folgende Teile benötigt:
| Pos. | Menge | Benennung | Abmessung | Werkstoff |
|---|---|---|---|---|
| 1 | 1 | U-Profil | 35x35x2, 80 lg. | Aluminium |
| 2 | 1 | Flach | 10x20, 31 lg. | Aluminium |
| 3 | 1 | Flach | 10x20, 31 lg. | Aluminium |
| 4 | 1 | Blech | 60x30x1 | Aluminium |
| 5 | 8 | Spannhülse DIN1481 | 3x10 | FSt |
| 6 | 1 | Flügelschraube DIN316 | M8x60 | Temperguß/Stahl vz. |
| 7 | 1 | Vierkantleiste | 30x20, 100 lg. | Kiefer |
Soweit erforderlich, werden die Teile leicht entgratet. Die Bohrung in Pos. 3 wird mit 6,5mm oder 7mm (exakt wären es 6,8mm) vorgebohrt und das Gewinde geschnitten.
Dann werden die Bohrungen für die Spannhülsen angezeichnet und gekörnt, wobei hier nicht die größte Genauigkeit erforderlich ist. Die beiden Klötzchen Pos. 2 und 3 werden in ihrer genauen Position fixiert und gemeinsam mit dem äußeren Profil gebohrt.
Nach Überprüfen der Maßhaltigkeit werden die Spannhülsen eingeschlagen. Das dünne Blech erhält eine Bohrung und wird über einem 10mm-Bohrer vorsichtig in Form gebogen.
Der Schacht wird in folgendem Abstand vom Gleis montiert:
An der vorgesehenen Einbaustelle muß zunächst einmal Platz geschaffen werden. Im 'Untergrund' sollte vorher überprüft werden, ob hier keine Querträger, Kabel o.ä. im Weg sind, dann kann der Ausschnitt gesägt werden.
Einfacher ist es natürlich, den Schacht direkt beim Bau des Moduls mit einzuplanen. Die Oberseite des Alu-Profils sollte dem Verlauf der Geländekontur angepasst werden, um den nichtbenutzten Schacht nahezu nahtlos tarnen zu können.
Ausgehend vom Abstand zur Gleismitte wird der Schacht ausgerichtet, wobei ein eingesteckter Signalträger gute Dienste leistet, und zunächst provisorisch mit Schraubzwingen befestigt. Bei geschickter Positionierung kann man den Schacht direkt an die umliegenden Modulteile mit Zweikomponentenkleber befestigen. Bei störenden Trassenverstärkungen wird eine längere Schraube eingesetzt.